Binghatti Crescent — это уникальный жилой проект, расположенный в Jumeirah Village Circle (JVC), Дубай. Проект отличается современным дизайном с элементами традиционного ближневосточного искусства и архитектуры. Здание имеет уникальную систему балконов, которые создают динамичный визуальный эффект и обеспечивают приватность для жильцов. Проект сочетает в себе эстетику, функциональность и устойчивость, предлагая комфортные условия для жизни. Расположение объекта делает его выгодным инвестиционным предложением.
15 мин
Burj Al Arab
20 мин
Downtown Dubai
15 мин
Dubai Marina
10 мин
Dubai Sports City
*Первоначальный план платежей на дату запуска.
Информация о застройщике
Binghatti Group – девелоперская компания, сохраняющая за собой статус лидера на рынке ОАЭ. Предприятие успешно работает в своем сегменте с 2008 года, в его портфеле насчитывается несколько десятков удачно реализованных проектов, общая стоимость которых оценивается более чем в 3 млрд дирхамов.
Проекты девелопера реализуются в известных и перспективных районах Дубая – Dubai Silicon Oasis, Business Bay, Jumeirah Village Circle. В числе знаковых объектов – элитный жилой комплекс Binghatti Hills и Burj Binghatti Jacob&Co Residences.
Lorem ipsum dolor sit amet, consectetur adipiscing elit, sed do eiusmod tempor incididunt ut labore et dolore magna aliqua. Ut enim ad minim veniam, quis Lorem ipsum dolor sit amet
Schon Business Park, 29
Submit Your Details
to Get More Info
Submit Your Details
to Get Project Materials
Submit Your Details
to Get PDF Brochure
Submit Your Details
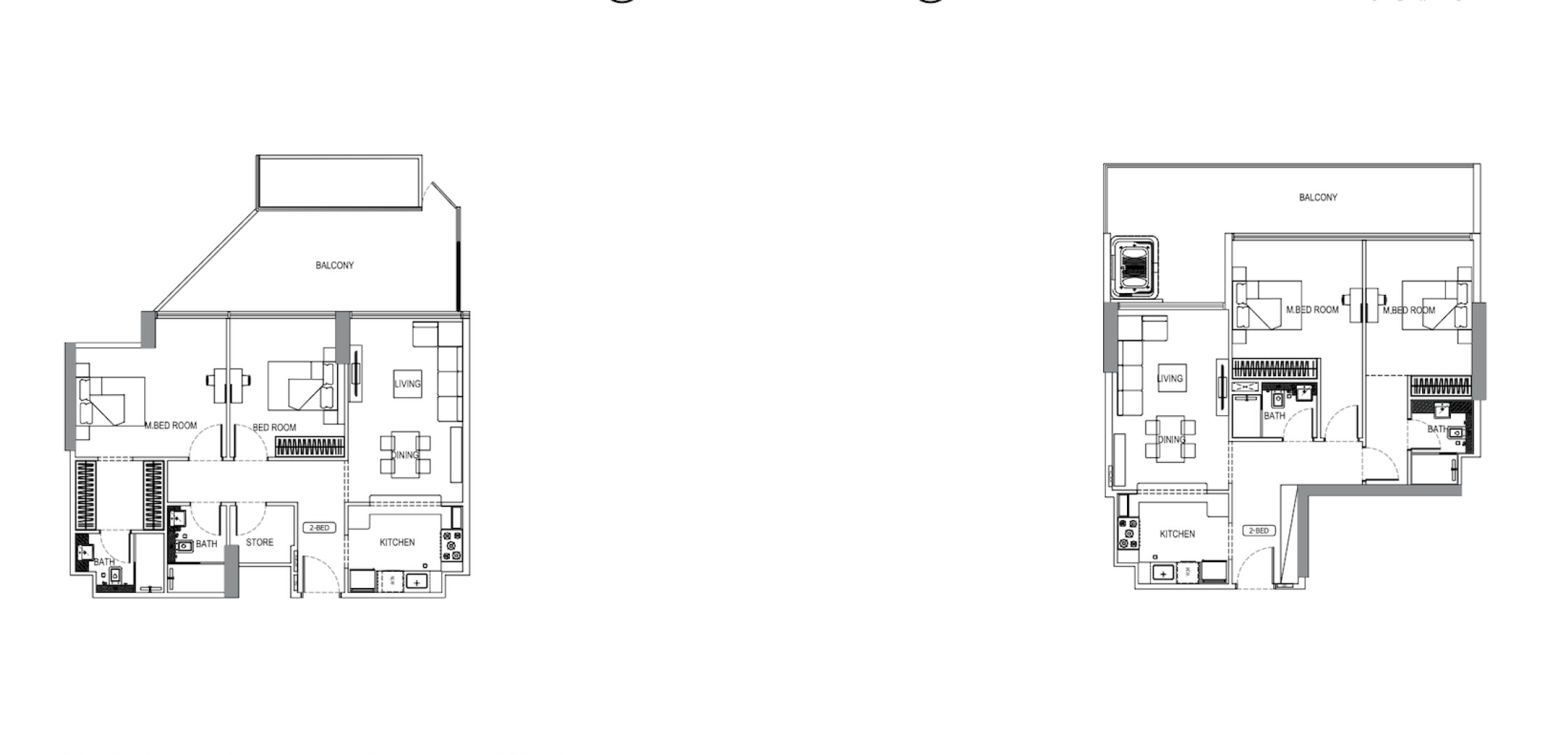
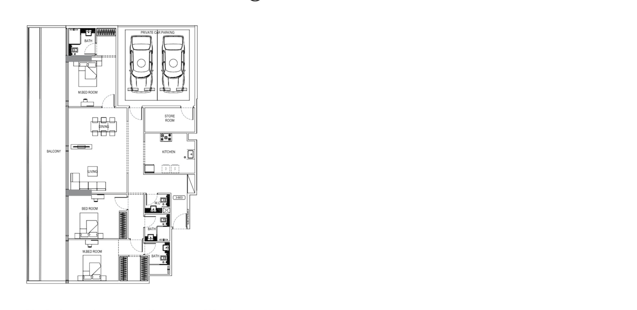
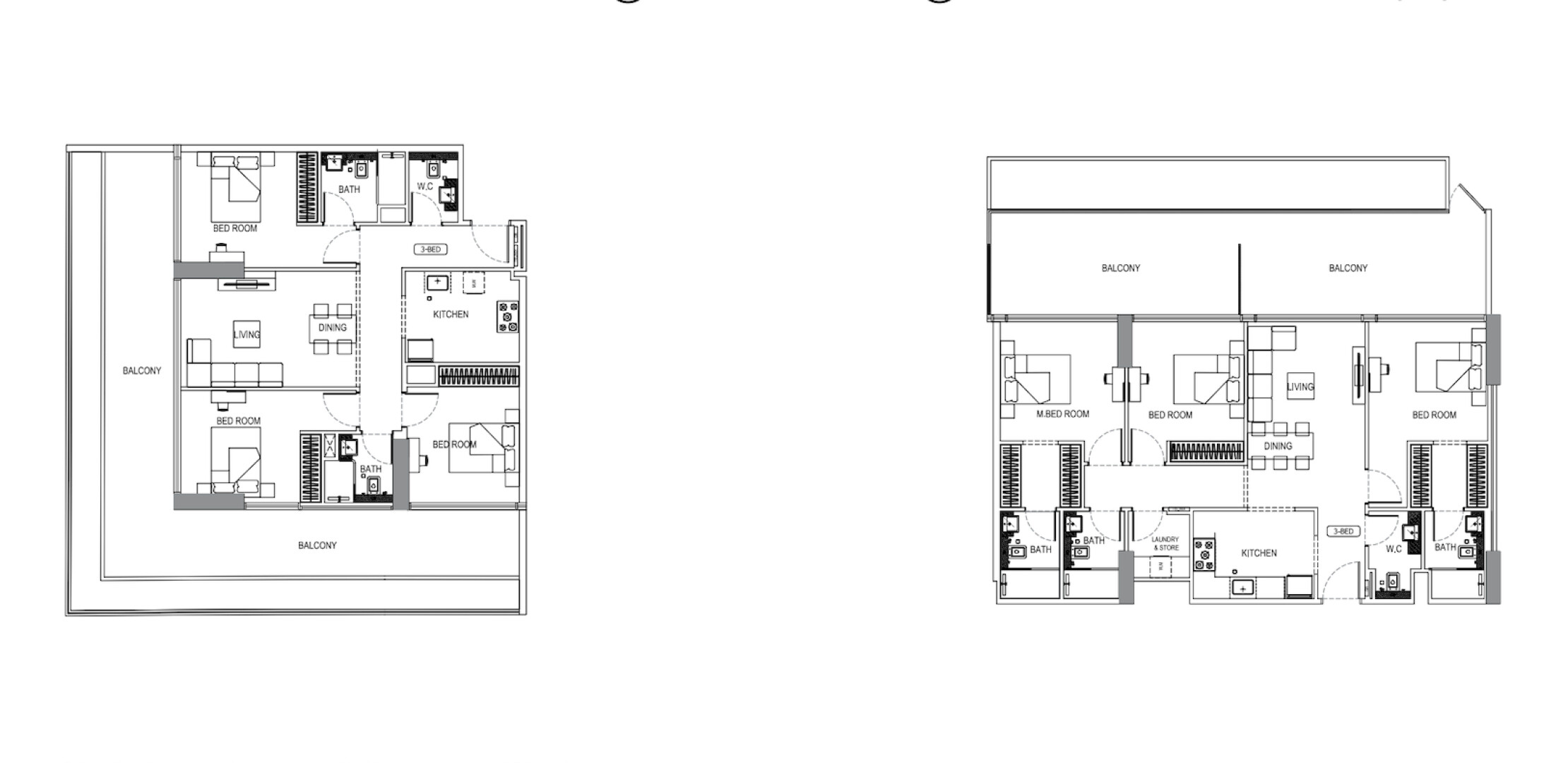
to Get Project Layouts